|
|
Descriptions:
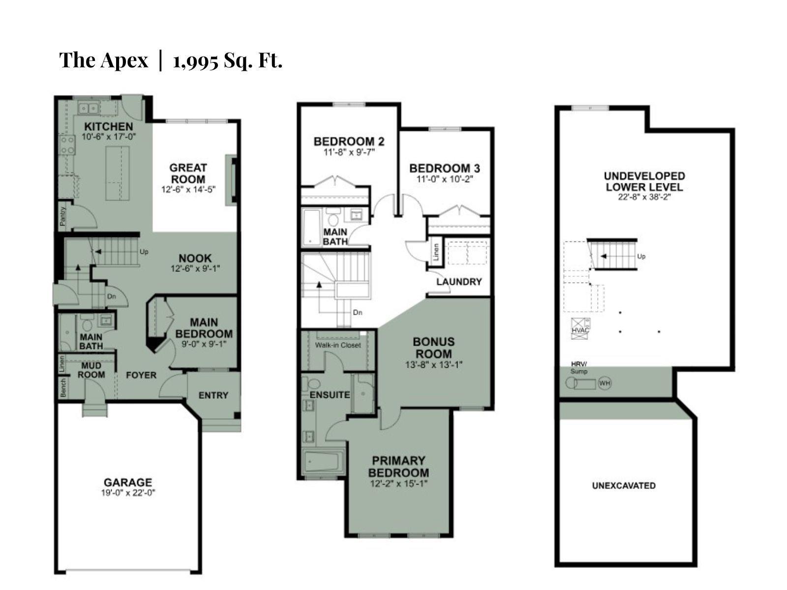
Designed for elevated family living, The Apex offers style, space, and smart functionality. This four-bedroom home features a double attached garage with floor drain, 9' main-floor ceilings, luxury vinyl plank flooring, and a separate side entrance. The main level includes a full 3-piece bath and bedroom--perfect for guests or multi-generational living plus a mudroom with garage access. The open-concept kitchen, nook, and great room are ideal for entertaining, showcasing quartz countertops, a large island with eating ledge, upgraded soft-close cabinetry, built-in microwave, Silgranit sink, chimney-style hood fan, full-height backsplash, and pantry. Large windows and an electric fireplace brighten the space. Upstairs features a primary retreat with 5-piece ensuite and walk-in closet, bonus room, two additional bedrooms, full bath, and laundry. Includes brushed nickel fixtures, upgraded railings, basement rough-ins, and Sterling Signature Specifications.
|
|
|
| Includes: |
|
Garage Control, Garage Opener, Hood Fan, Oven-Microwave |
|
|
|
|
|
| Site Influences: |
| Public Transportation, Schools, Shopping Nearby |
|
| Legal Description: |
| ACCESS Legal Description |
|
| Location & Listing Info: |
| Neighbourhood: |
River's Edge
|
|
| Lot Shape: |
Irregular |
|
|
|
|
|
| Property Info: |
|
| Property Type: |
Detached Single Family |
| Home Style: |
2 Storey |
| Year Built: |
2025 |
| Total Floor Area: |
1,980 sq. ft. |
| Front Exposure: |
Southeast
|
|
|
|
|
|
| Exterior: |
|
| Exterior: |
Public Transportation, Schools, Shopping Nearby |
| Front Exposure: |
Southeast |
| Roof: |
Asphalt Shingles |
|
|
|
|
|
|
|
|
|
|
| Rooms: |
|
| Total Bedrooms: |
4
(Bedrooms Above: 4)
|
| Bathrooms: |
Full: 3
/ Half: 0
|
| Rooms Above: |
8 |
|
|
|
|
|
| Additional Info: |
|
| Heating: |
Y |
| Basement: |
Full, Unfinished |
| Basement Type: |
Full, Unfinished |
| Floor Finish: |
Carpet, Vinyl Plank |
| Parking: |
Double Garage Attached |
|
|
|
|
|
|
|
|
|
|
|
|
|
|
|
 |
Contact Angie Aspin. Realtor -
510, 800 Broadmoor Blvd, Sherwood Park, Alberta, T8A 4Y6
|
|
|
|
|
|
|
|
|
|
Copyright 2026 by the REALTORS® Association of Edmonton. All Rights Reserved. Data is deemed reliable but is not guaranteed accurate by the REALTORS® Association of Edmonton. Data was last updated March 3, 2026, 5:48 pm. |
|
|
|
|
The data included on this website is deemed to be reliable, but is not guaranteed to be accurate by the REALTORS® Association of Edmonton.
MLS®, Multiple Listing Service®, and the associated logos are all registered certification marks owned by CREA and are used to identify real estate services provided by brokers and salespersons who are members of CREA. The trademarks REALTOR®, REALTORS® and the REALTOR® logo are controlled by The Canadian Real Estate Association (CREA) and identify real estate professionals who are members of CREA. Used under license.
|